
Vasarnamis"Kuosa"
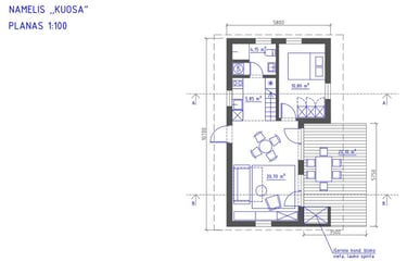
„Kuosa“ – Namas kupinas kuršiskos dvasios, „Strazdo“ sesuo, šiame name suprojektuota erdvi svetainė, kiek atskirta virtuvės zona, atskiras šeimininkų miegamasis ir antresolėje dviejų lovų miegamasis. “Kuosa“ plotas – 46,80 kv.m.






Detalės
Miegamieji
2
Dydis
46,80 m2
Aukštai
1 su mansarda
Kaina
143 280 Eur (Pilna apdaila be baldų)












Kuosa:
- Grindys: terasa - termomediena;
svetainė + virtuvė + miegamasis ir antresolė - laminatas;
wc - baltos matinės plytelės, 20x20cm.
- Sienos: gyvenamieji kambariai + antresolė - G/K sienos dažomos balta spalva;
wc - baltos matinės plytelės + sienos fragmentai dažyti pilka spalva.
-- Lubos: svetainė + antresolė - G/K lubos dažytos balta spalva;
miegamasis - G/K lubos dažytos balta spalva;
wc - drėgmei atsparios G/K lubos, dažytos pilka spalva.
- Apšvietimas: numatytas visų patalpų bendras apšvietimas, jaukumui sukurti galima naudoti toršerus arba stalinius šviestuvus;
- Laiptų tipas: mediniai laiptai.
Susisiekite
Susisiekite ir gausite visą Jums aktualią informaciją apie projektą "Kuosa"




